トップページ > エスリード平野本町

販売物件情報

  • お気に入りリストを見る
  • 物件情報を印刷する
  • プリンタの設定で「背景を印刷する」と設定しないと「背景画像」が印刷されないことがあります。印刷の際には、必ず「背景を印刷する」設定にしてください。

中古マンション

エスリード平野本町

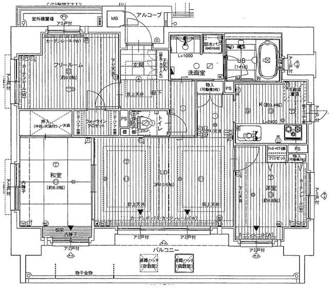
画像

この物件のお支払い例

頭金0円/ボーナス払い0円

物件価格3,480万円

月々の支払い91,872

※上記支払例の借入条件:金利0.6%、借入総額3,480万円、借入期間35年

所在地・交通

所在地 大阪市平野区平野本町3丁目3-23 エスリード平野本町
最寄駅 大阪メトロ谷町線 平野 徒歩分数 7分
最寄バス停 徒歩分数
小学校校区 大阪市立平野小学校 中学校校区 大阪市立平野北中学校

※学校区は住所から自動判定したものであり、保証できる情報ではございません。正確な学校区はお問い合わせ下さい。

お問い合わせフォームはこちら

「人型アイコン」を地図上にドラッグすることで『Google Street View』に切り替わります。

※地図上の「対象地」は「〒547-0044 大阪府大阪市平野区平野本町3丁目3−23」の場所を指しています。実際の場所ではない場合がございます。詳しくはお問い合わせください。

お問い合わせフォームはこちら

物件概要

価格 3,480万円 種目 中古マンション
間取り 3LDK 間取り内訳 1FK3.4畳×1室 1FL10.6畳×1室 1F洋4.8畳×1室 1F和6畳×1室 1FS6畳×1室
専有面積 65.67㎡ 建物構造 RC
バルコニー面積 14.14㎡ 向き
階数 12階建 所在階 3階
築年月(竣工月) 2006年4月 駐車場有無 空無
駐車場料金 総戸数 56
管理費 8,900円 積立金 11,040円
土地権利 所有権 管理形態/方式 管理会社に全部委託/日勤
用途地域 商業地域
現況 空家 取引態様 媒介
建築確認番号

取引条件等

引渡し 相談

その他

設備 追焚機能、システムキッチン、浄水器、給湯、室内洗濯機置場、エレベーター、都市ガス、オートロック、[洗濯機置場]
特徴
諸条件・相談
情報登録日 2025年7月27日 情報更新予定日 2025年10月17日
物件番号 33595
最近見た物件

ページの先頭へ

Copyright(C) 八尾・東大阪不動産ナビ All rights reserved.