トップページ > 東大阪市源氏ケ丘 

販売物件情報

  • お気に入りリストを見る
  • 物件情報を印刷する
  • プリンタの設定で「背景を印刷する」と設定しないと「背景画像」が印刷されないことがあります。印刷の際には、必ず「背景を印刷する」設定にしてください。

中古一戸建て 新着! リノベ済!

東大阪市源氏ケ丘 

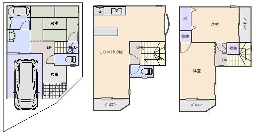
画像

この物件のお支払い例

頭金0円/ボーナス払い0円

物件価格2,480万円

月々の支払い69,712

※上記支払例の借入条件:金利0.975%、借入総額2,480万円、借入期間35年

スタッフのワンポイントPR!

■令和7年10月フルリフォーム完成!!
■安心の鉄骨造り3階建て建物♪
■南西角地につき陽当り良好♪


所在地・交通

所在地 東大阪市源氏ケ丘 
最寄駅 近鉄大阪線 弥刀 徒歩分数 4分
最寄バス停 徒歩分数
小学校校区 東大阪市立弥刀小学校 中学校校区 東大阪市立弥刀中学校

※学校区は住所から自動判定したものであり、保証できる情報ではございません。正確な学校区はお問い合わせ下さい。

お問い合わせフォームはこちら

「人型アイコン」を地図上にドラッグすることで『Google Street View』に切り替わります。

※地図上の「対象地」は「〒577-0822 大阪府東大阪市源氏ケ丘」の場所を指しています。実際の場所ではない場合がございます。詳しくはお問い合わせください。

お問い合わせフォームはこちら

物件概要

価格 2,480万円 種目 中古一戸建住宅
リノベーション リノベーション済
間取り 3LDK 間取り内訳 1F和6畳×1室 2FLDK16畳×1室 3F洋7.5畳×1室 3F洋6畳×1室
土地面積 50.21㎡ 私道面積
建物面積 95.95㎡ 建物構造規模 鉄骨造 3階建
築年月(竣工月) 2000年12月 駐車場 有 
建ぺい率/容積率 70%/200% 都市計画 市街化区域
接道状況 南東4m 公道 接面5.6m 位置指定無 南西6m 公道 接面5.5m 位置指定無  角地
地目 宅地
土地権利 所有権 地勢 平坦
用途地域 第一種中高層住居専用地域
現況 空家 取引態様 媒介
建築確認番号

取引条件等

引渡し 相談

その他

設備
特徴 日当り良好
諸条件・相談
情報登録日 2025年9月15日 情報更新予定日 2026年3月6日
物件番号 34605
最近見た物件

ページの先頭へ

Copyright(C) 八尾・東大阪不動産ナビ All rights reserved.